Rénovation et extension d’un chalet de montagne
Programme
Rénovation (y.compris énergétique) et extension d’un chalet
Lieu
Saint-Sorlin-d’Arves, Auvergne-Rhône-Alpes
Type de mission
Mission de conception et suivi architectural
Année
2024
Surface
180 m² + 22 m²
Coût travaux
350 k€ HT





























Situé à Saint-Sorlin-d'Arves, au cœur du domaine skiable des Sybelles en Savoie, ce chalet de montagne fait l'objet d'un projet de rénovation et d'extension pensé pour accompagner l'évolution des usages d'une famille. L'intervention vise à transformer un chalet devenu trop contraint en un lieu de vie généreux, fonctionnel et confortable, capable d'accueillir sereinement les séjours réunissant enfants et adultes.
Des espaces devenus insuffisants
Longtemps contraint par des surfaces inadaptées, le chalet existant ne permettait plus d'accueillir confortablement les séjours familiaux. Les espaces de vie manquaient de fluidité, la cuisine était exiguë, et l'absence d'espace d'entrée digne de ce nom compliquait les usages hivernaux typiques de la montagne.
L'objectif du projet est de repenser en profondeur l'organisation des espaces pour offrir davantage de convivialité et de souplesse d'usage, tout en conservant le même nombre de couchages. Il s'agit d'améliorer la qualité de vie au quotidien sans augmenter la surface habitable de manière excessive.
Extension et réorganisation des espaces de vie
Le projet s'attache à libérer l'espace de séjour et à clarifier les circulations intérieures dans le chalet existant. La réorganisation des espaces permet de créer un lieu distinct dédié aux activités familiales : les enfants peuvent jouer, les adultes se détendre, sans perturber les temps de repas ou de cuisine. Cette séparation fonctionnelle met fin aux usages contraints et aux aménagements provisoires qui caractérisaient l'ancien chalet.
La cuisine, auparavant exiguë et peu fonctionnelle, a été agrandie et entièrement repensée. Elle devient un lieu lumineux, généreux et adapté à une occupation familiale intensive, avec des plans de travail suffisants, des rangements optimisés et une ouverture sur les espaces de vie.
L'extension accueille un véritable espace d'entrée qui redéfinit clairement l'accès au chalet et organise les flux intérieurs. Cet espace tampon est essentiel dans le contexte montagnard : il permet de gérer les équipements de ski, les vêtements d'hiver et la transition thermique entre l'extérieur et l'intérieur.
L'extension intègre également une nouvelle chambre et des sanitaires, conservant ainsi la capacité d'accueil du chalet tout en améliorant le confort pour les séjours familiaux. Ces espaces supplémentaires répondent aux besoins d'une famille qui s'agrandit, tout en maintenant une organisation fonctionnelle et des circulations fluides.
Une architecture contemporaine respectueuse du contexte alpin
L'isolation thermique par l'extérieur a été l'occasion de repenser l'ensemble des façades du chalet : un bardage bois unifie désormais l'extension et le volume existant, créant une continuité harmonieuse qui s'intègre naturellement dans le paysage montagnard de Saint-Sorlin-d'Arves.
Sans pastiche, ce nouvel habillage prolonge l'esprit du chalet traditionnel tout en affirmant une contemporanéité discrète, lisible et respectueuse de l'identité alpine du lieu. Les volumes, les matériaux et les proportions dialoguent avec l'architecture locale, effaçant la frontière entre ancien et nouveau.
L'extension ne cherche pas à imiter l'existant, mais à le compléter avec justesse. Le bardage bois, en enveloppant l'ensemble du chalet, crée une lecture architecturale cohérente qui valorise le bâtiment dans son environnement montagnard.
Rénovation énergétique et confort thermique
Le projet a été l'occasion d'améliorer sensiblement les performances énergétiques du chalet, dans une démarche de confort durable et de sobriété énergétique, particulièrement importante en contexte montagnard où les hivers sont rigoureux :
-
Isolation thermique par l'extérieur en fibre de bois et ravalement complet des façades, préservant la surface habitable intérieure tout en améliorant drastiquement l'isolation
-
Isolation des combles perdus en ouate de cellulose, matériau biosourcé offrant d'excellentes performances thermiques
-
Remplacement de la chaudière à gaz par une pompe à chaleur air/eau, réduisant l'empreinte carbone et les coûts de chauffage
-
Installation d'un poêle à bois pour le chauffage d'appoint et l'ambiance chaleureuse typique des chalets de montagne
Cette approche énergétique globale permet de réduire significativement les consommations tout en améliorant le confort thermique été comme hiver.
Rafraîchissement des espaces existants
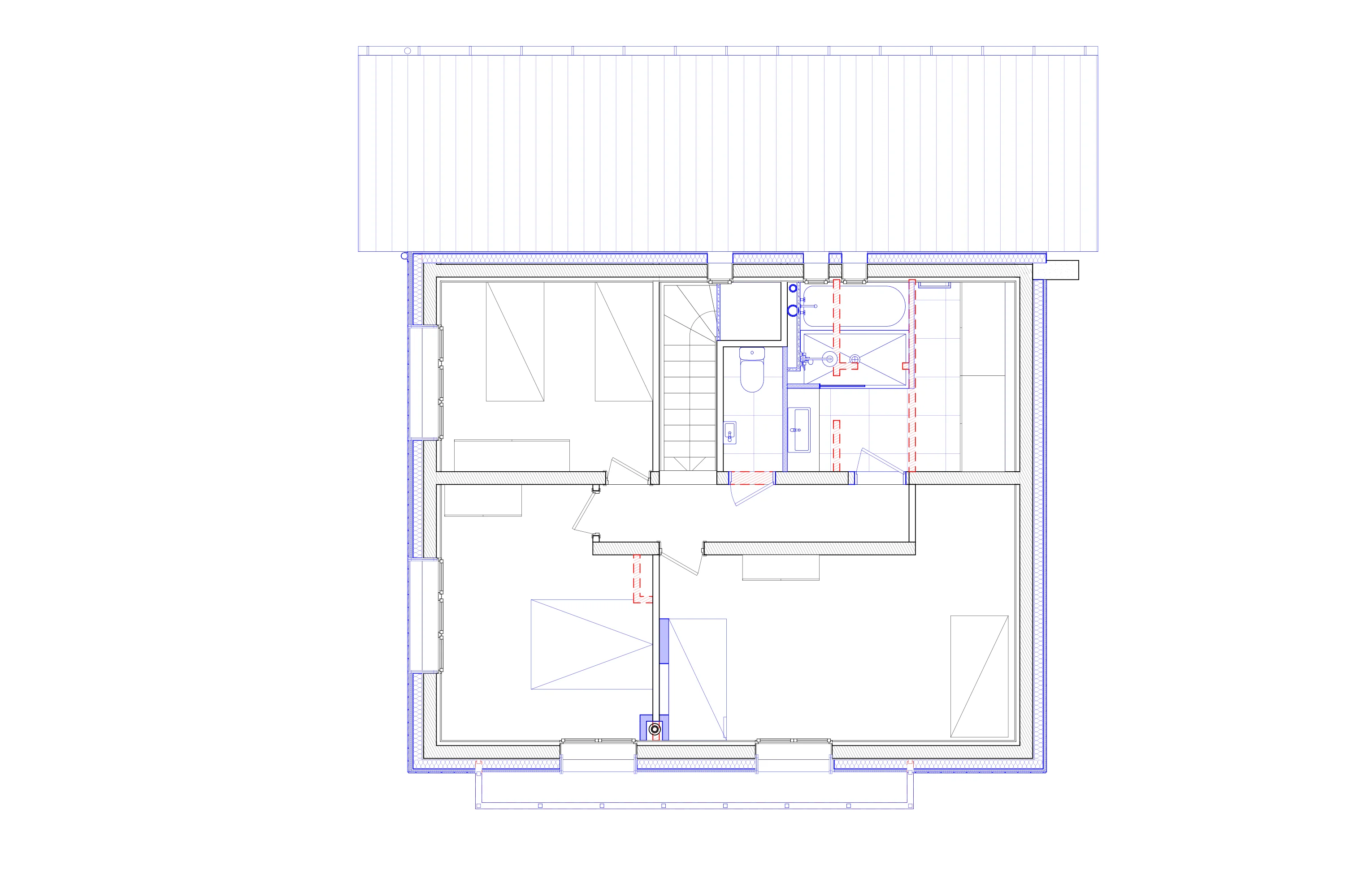
Au-delà de l'extension, le projet inclut la rénovation de la salle de bain à l'étage, offrant un espace modernisé et fonctionnel pour accueillir confortablement toute la famille lors des séjours.
L'ensemble de ces interventions transforme ce chalet familial en un lieu plus généreux, fonctionnel et adapté aux usages contemporains, tout en valorisant son implantation exceptionnelle au cœur du domaine des Sybelles et son identité alpine authentique.
En collaboration avec : Valet - Maître-d’oeuvre
Crédits photos : Simon Genillier Roelsgaard et prôto.architecture